Corporate
Company Profile
Our Mission
Our Vision
Our Documents
Our team
Products
Steel Structures
Single Storey Steel Houses
Multi-Storey Steel Houses
Lofts Steel House
Twin Steel Houses
Teony House
Functional Structures
Office Buildings
Commercial Buildings
Educational Buildings
References
Production
Steel Structure Systems
TeoCad (Design Software)
TeoCam (Production Software)
RollForm Machine Systems
Project Process
Design Process
Production Process
Construction and Assembly Phase
Logistics and Shipment Process
Media
Catalogs
News
Videos
Blog
Contact
EN
Türkçe
English
Deutsch
Menu
TEO 11 Sasaki House
Home
Products
Steel Structures
Teony House
TEO 11 Sasaki House
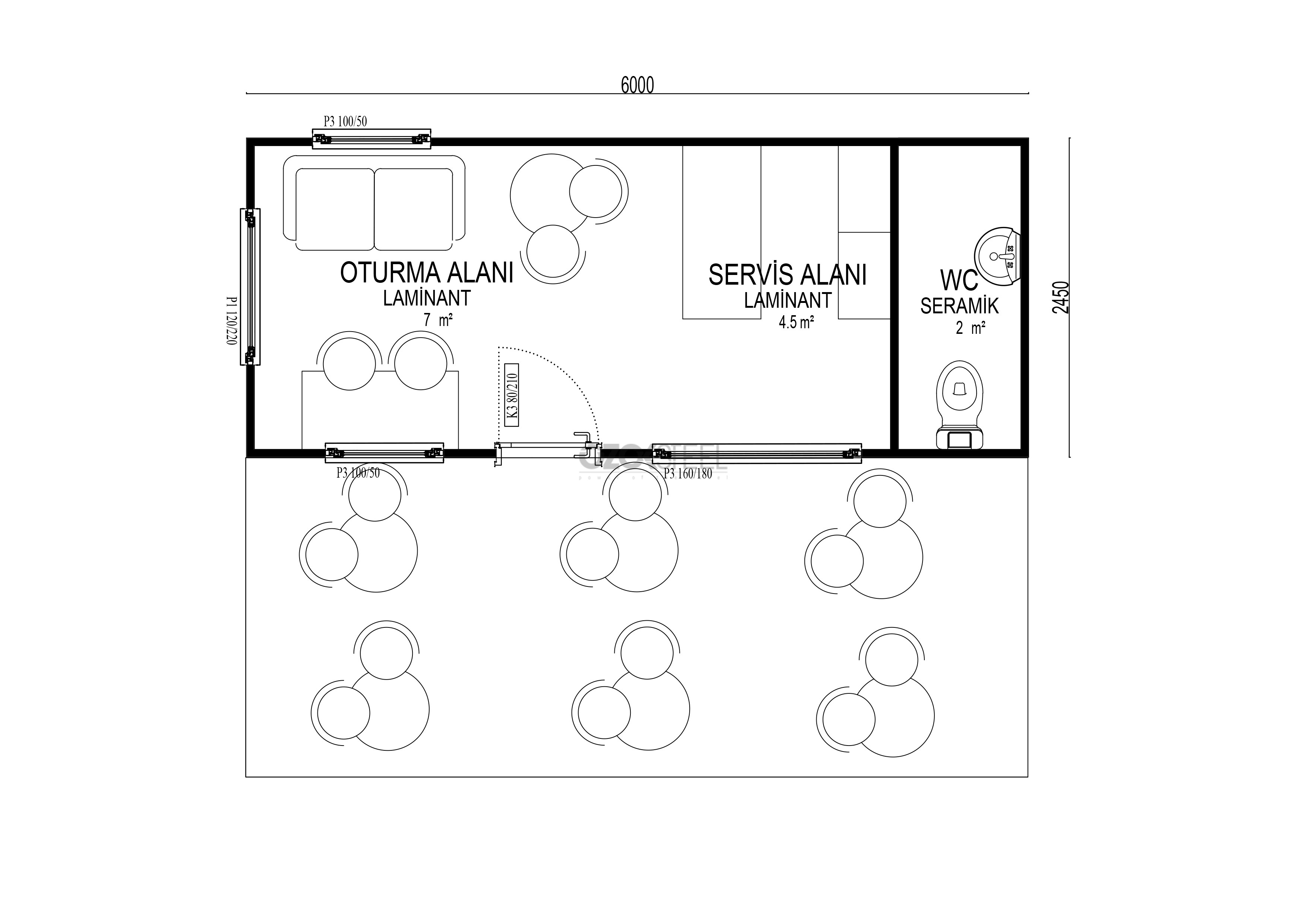
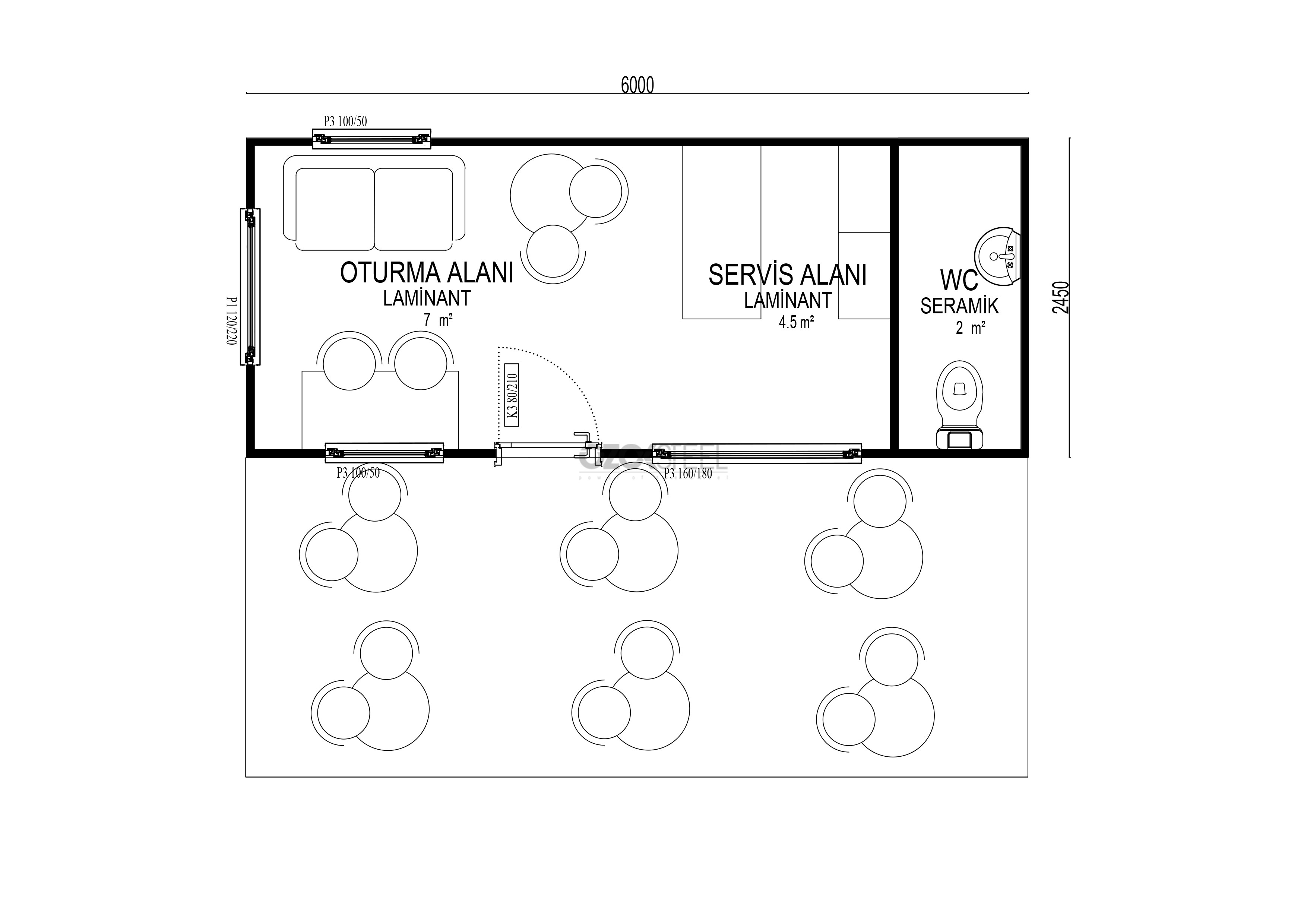
TEO 11 Sasaki House Detail
Sasaki House, designed in the shape of a cafe, is a modern and minimal design with dimensions of 2.5x6m. It provides customers with a spacious seating area with the veranda area to be added in front of it.
Previous Product
TEO 10 Wright House
Next Product
TEO 12 Baeza House
Request Information
I have read, understood and accepted
KVKK and Privacy Text
.
Send
Customer Representative
Whatsapp Communication Line
Customer Representative
Hello! Welcome to the Ozoksteel family! If you have any questions or needs, you can send us a message via WhatsApp.
Request Information