Corporate
Company Profile
Our Mission
Our Vision
Our Documents
Our team
Products
Steel Structures
Single Storey Steel Houses
Multi-Storey Steel Houses
Lofts Steel House
Twin Steel Houses
Teony House
Functional Structures
Office Buildings
Commercial Buildings
Educational Buildings
References
Production
Steel Structure Systems
TeoCad (Design Software)
TeoCam (Production Software)
RollForm Machine Systems
Project Process
Design Process
Production Process
Construction and Assembly Phase
Logistics and Shipment Process
Media
Catalogs
News
Videos
Blog
Contact
EN
Türkçe
English
Deutsch
Menu
Konya Light Steel Villa 200 m²
Home
Products
Steel Structures
Two Storey Steel Houses
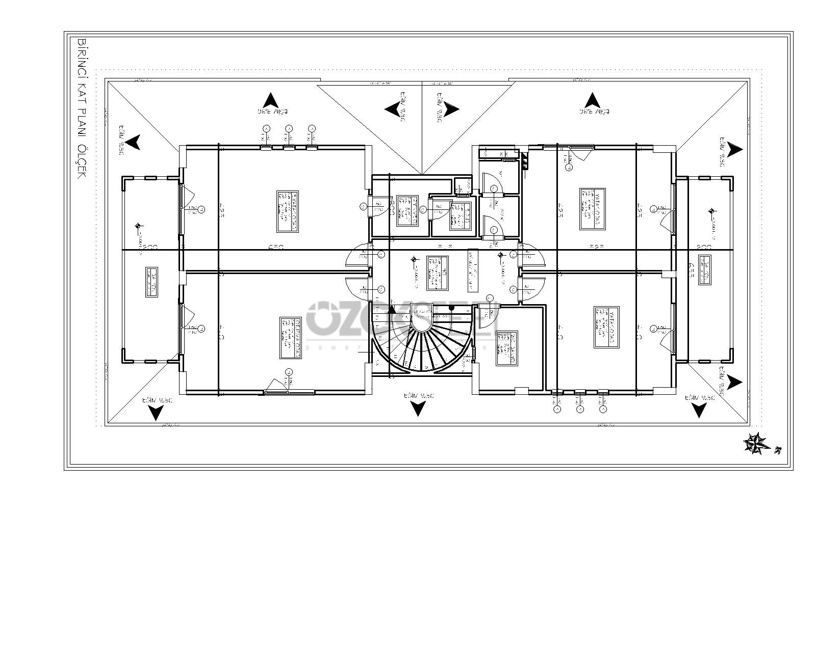
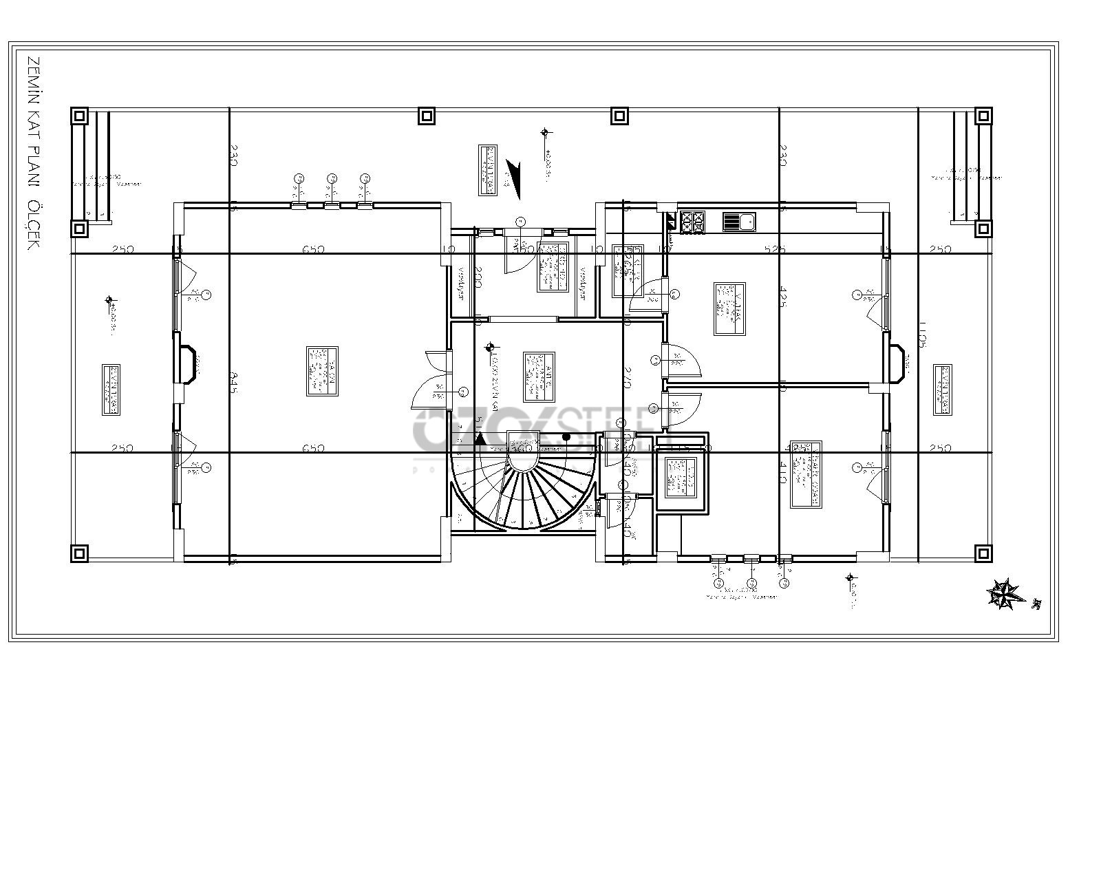
Konya Light Steel Villa 200 m²
Konya Light Steel Villa 200 m² Detail
Located in Konya, this luxurious and durable 200 square meter steel house attracts attention with its modern design and spacious interiors. It offers a comfortable living space.
Previous Product
Evrim Light Steel Villa 200 m²
Next Product
Hisar Light Steel Villa 324 m²
Request Information
I have read, understood and accepted
KVKK and Privacy Text
.
Send
Customer Representative
Whatsapp Communication Line
Customer Representative
Hello! Welcome to the Ozoksteel family! If you have any questions or needs, you can send us a message via WhatsApp.
Request Information